Lokal położony w ciągu handlowo-usługowym na parterze eleganckiego osiedla. Przed budynkiem duży parking dla klientów. Witryna widoczna z ulicy Powązkowskiej.
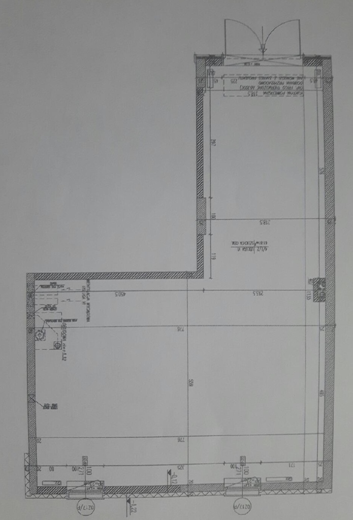
Lokal o powierzchni 612m2, z witryną – podwójnymi drzwiami od strony ulicy oraz dwoma wysokimi oknami od strony zielonego, zamkniętego patio osiedla.
Jedno wejście – od strony ulicy, podwójne szklane drzwi. Część przy wejściu o szerokości 218 i długości 576 cm, w głębi szersza część lokalu o wymiarach szerokość 776 cm i długość 559 cm, z miejscem na toaletę oraz dwoma otwieranymi oknami na wewnętrzne, zielone patio. 

Lokal w stanie deweloperskim, do własnego urządzenia przez najemcę. Instalacja elektryczna – rozprowadzona, instalacja kanalizacyjna, wodna, internet, ogrzewanie centralne – cztery grzejniki. Centralna instalacja przeciwpożarowa. Wysokość 420 cm.

Czynsz miesięczny 5.300 zł
opłaty administracyjne i zaliczki na media ok 650 zł/m-c, 

Wygodne miejsce do prowadzenia działaności – w sąsiedztwie już działające lokale, dobry dojazd z trasy S2 i Żoliborza Artystycznego. 

Ogłoszenie nie stanowi oferty w rozumieniu przepisów Kodeksu Cywilnego. 
MDS NIeruchomości – do zakupu nieruchomości podchodzimy kompleksowo – służymy pomocą na każdym jego etapie – prezentacje, negocjacje, dobór najlepszej opcji finansowania transakcji, organizacja czynności notarialnych, protokolarne przekazanie lokalu. Za nasze działania pobieramy wynagrodzenie. 
Prezentacje, informacje: Małgosia tel. 881 155 866, e-mail: m.szymanska@mdsnieruchomosci.warszawa.pl

Rynek: Secondary

Województwo: Mazowieckie

Miasto: Warszawa

Ulica: ul. Jasnodworska

Cena całkowita: 5300 PLN

Cena za metr2: 85.48 PLN

Powierzchnia: 62 m2

Rok budowy obiektu: 2014

Ofertę przygotował:
Małgorzata Szymańska
Email: biuro.mdsnieruchomosci@gmail.com
Nr telefonu: 881155866

Leave a Comment

Twój adres e-mail nie zostanie opublikowany. Wymagane pola są oznaczone *