Na sprzedaż 3-pokojowe mieszkanie o powierzchni 51.5 m2 położone w inwestycji  Budimex-Chełmska z 2007 roku.

Mieszkanie urządzone i umeblowane oraz wyposażone w sprzęt AGD. 

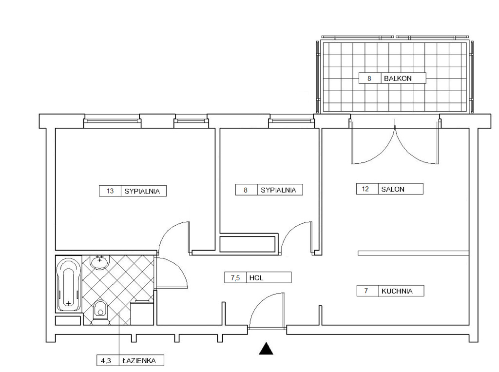
Mieszkanie składa się z :  

 – przedpokoju 7,2 m2

 – salonu 12 m2 wraz z  aneksem kuchennym 7 m2

 – łazienki z wanną oraz WC 4,3 m2

 – sypialni nr 1  13m2

 – sypialni nr 2  8m2

 – balkonu 8m2

W przedpokoju pojemna szafa wnękowa.

Mieszkanie zlokalizowane jest na I piętrze w sześciopiętrowym, nowoczesnym budynku z windą, okna na wschód, w kierunku ulicy Czerniakowskiej. 

Do mieszkania przynależy miejsce postojowe w garażu podziemnym na poziomie -1, dodatkowe płatne 35000zł.

Apartamentowiec posiada recepcję, monitoring oraz całodobową ochronę. Na zielonym dziedzińcu są dwa place zabaw dla dzieci, piaskownice, pięknie utrzymane trawniki, drzewa. Miejsca na rowery, wózkownia.

W pobliżu Park Morskie Oko i Łazienki Królewskie. Okolica z pełną infrastrukturą. W budynku Żabka.

Księga Wieczysta bez obciążeń i wpisów w dziale III i IV

Miesięczne opłaty czynszowe wynoszą ok 700 zł.

Cena do negocjacji.

Informacja nie stanowi oferty w rozumieniu przepisów Kodeksu Cywilnego. 
Biuro MDS Nieruchomości pobiera wynagrodzenie za świadczone usługi. 
więcej informacji Małgosia tel. 881 155 866 

Potrzebujesz finansowania – znajdziemy kredyt dostosowany do Twojej sytuacji i wymagań. 
więcej informacji: Beata tel. 669 996 179
www.homeside.pl 


Rynek: Secondary

Województwo: Mazowieckie

Miasto: Warszawa

Ulica: Polkowska

Cena całkowita: 710000 PLN

Cena za metr2: 13786.41 PLN

Powierzchnia: 51.5 m2

Czynsz: 700

Ilość pokoi: 3

Piętro: 1 z 6

Rok budowy obiektu: 2007

Ofertę przygotował:
Małgorzata Szymańska
Email: biuro.mdsnieruchomosci@gmail.com
Nr telefonu: 881155866

Leave a Comment

Twój adres e-mail nie zostanie opublikowany. Wymagane pola są oznaczone *